満室-入居待ち登録受付中! プレミアムガレージハウス聖蹟桜ヶ丘
-

2階:ワンルーム
洗面台
広い浴室
プレミアムガレージハウス聖蹟桜ヶ丘
- 所在地
- 東京都多摩市和田
- 総戸数
- 1棟4戸
- 特徴
-
・屋内2台、屋外2台の専用駐車スペース
・敷地ゆったり、車の取り回しも快適なガレージライフ
・インター至近のため週末ガレージライフ、書斎、アトリエにも最適
- アクセス
-
【最寄インター】
・中央自動車道 国立府中IC 約4.7km
【最寄り駅】
・京王線 聖蹟桜ヶ丘駅 バス約10分 中和田下車
徒歩約2分(バス便多数あり)
・京王線、小田急線 多摩センター駅 バス約10分
中和田下車徒歩約2分
・多摩都市モノレール 大塚帝京大学駅から 約1km
徒歩約15分
- 周辺環境
-
・バス(約5分毎)約10分の聖蹟桜ヶ丘駅から京王線で新宿まで28分(特急利用)の快適通勤
・陽当たり、眺望が良い南向きバルコニー付
・商業施設が充実した多摩ニュータウンエリアへも車で5分圏内
- 入居可能時期
- -
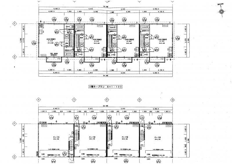
ガレージ(2台)&ワンルームタイプ
- 1階間取り
- ・2台用大型ガレージ 幅 約5.7m×奥行き 約5.8m
・シャッター開口部 幅 約4.6m×高さ 約2.4m
・電動リモコンシャッター付
・ガレージ内水道(給湯)完備
- 2階間取り
- ・ワンルーム 約15畳
・大型ユニットバス(追焚き付)、洗面化粧台、トイレ、システムキッチンセット完備
※ご入居にあたり家主様の審査があります。
※上記内容と現況に相違がある場合には現況を優先します。
仲介・管理:日本建業株式会社 都知事免許(13)第14901号
見取り図
