満室−入居待ち登録受付中! プレミアムガレージハウス西多摩 瑞穂R16
プレミアムガレージハウス西多摩 瑞穂R16
- 所在地
- 東京都西多摩郡瑞穂町駒形富士山
- 総戸数
- 1棟3戸
- 特徴
-
・箱根ヶ崎駅から8分の拝島駅より新宿駅まで直通38分、東京駅まで52分(青梅特快利用)の通勤圏。
・屋内2台、屋外1台の専用駐車スペース(他に敷地内有料駐車スペースあり)
・クルマと暮らす憧れのガレージライフを実現
・インター至近のため週末ガレージライフ、書斎、アトリエにも最適
・国道16号隣接、圏央道2インターへのアクセスは快適。
- 築年数
- 17年
- アクセス
-
【最寄インター】
・圏央道 青梅IC 約3km、入間IC 約3km
【最寄り駅】
・JR八高線 箱根ヶ崎駅から約1,700m 徒歩約21分
- 周辺環境
-
・大型ショッピングモール「ザモールみずほ16(24時間営業)」まで200mの買物に便利な環境。 「入間アウトレットパーク」までも車で10分以内。
・隣接するバイク&サイクルショップでは入居者様特典(メンテナンス、パーツの供給、廃棄サービスなど)があります。
・近隣には大型ショッピングモール、ホームセンターなど生活施設も充実
・晴れた日は富士山を望む、茶畑に囲まれた緑豊かな癒しの風景。
- 入居可能時期
- -
ガレージ(2台)&ワンルームタイプ
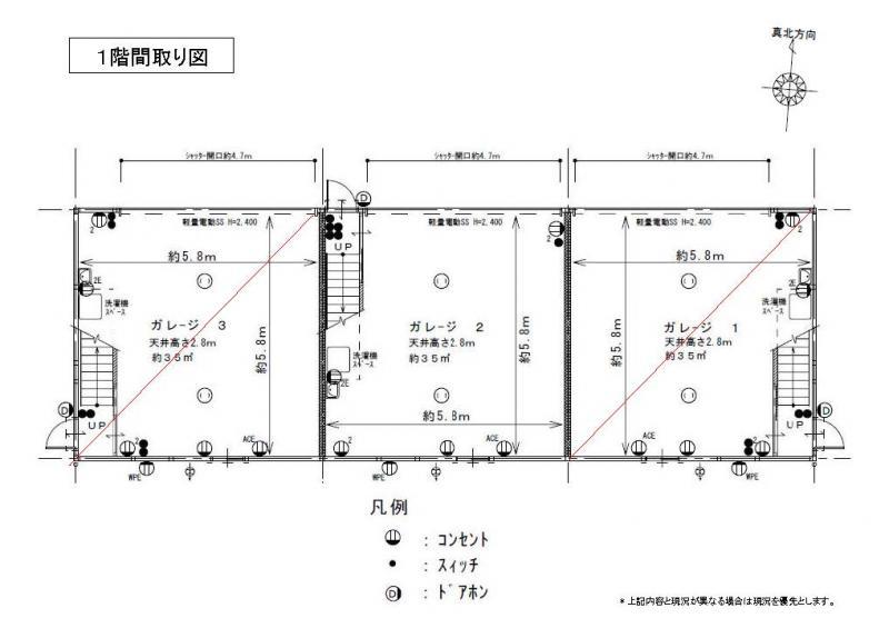
- 1階間取り
- ・2台用大型ガレージ
幅 約5.8m × 奥行き 約5.8m
・電動リモコンシャッター付
・シャッター開口部 幅 約4.7m × 高さ 約2.4m
・ガレージ内水道(給湯)完備
- 2階間取り
- ・ワンルーム 約16畳2重サッシ付き窓
・大型ユニットバス(追焚き付)、洗面化粧台、トイレ、キッチンセット完備
※ご入居にあたり家主様の審査があります。
※上記内容と現況に相違がある場合には現況を優先します。
見取り図

