満室−入居待ち登録受付中! プレミアムガレージハウス相武台A・B
-

ガレージ内部
2階:ワンルーム
広い浴室
プレミアムガレージハウス相武台A・B
- 所在地
- 神奈川県座間市広野台
- 総戸数
- A:1棟3戸 B:1棟3戸
- 特徴
-
・屋外に車1台分の専用駐車場あり
・ALSOKセキュリティ(利用料別途)
- 建築年月(築年数)
- 2014年10月(築11年)
- アクセス
-
・首都圏中央連絡自動車道「厚木PAスマートIC(外回り)」入口ま
で6.2km(車で18分)、「厚木PAスマートIC(内回り)」入口まで
6.8km(車で20分)
・東名高速道路「横浜町田IC」入口まで7.0km(車で22分)
・小田急小田原線「相武台前駅」まで1.3km(徒歩17分)
・最寄りバス停 神奈川中央交通「相模が丘」まで800m(徒歩10
分)
- 入居可能時期
- -
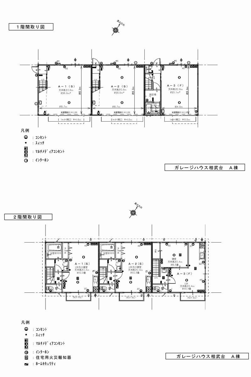
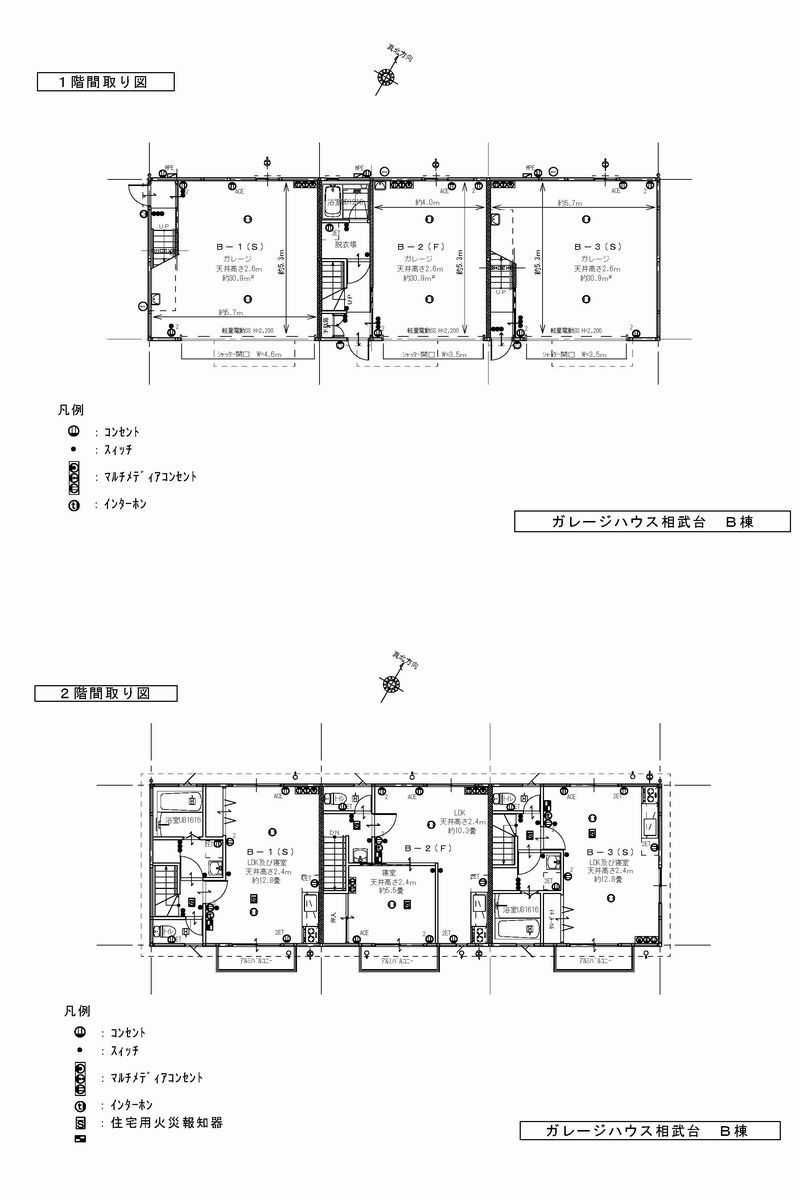
Sタイプ:ガレージ(2台)&ワンルームタイプ
- 1階間取り
- ・2台用ガレージ 幅約5.7m×奥行き約5.3m
・シャッター開口部 幅約4.6m×高さ約2.24m
・電動リモコン付、ガレージ内水道(給湯)
- 2階間取り
- ・ワンルーム約12.7畳(クローゼット付)
・洗面化粧台、トイレ、大型ユニットバス(追炊き付)
・システムキッチン完備、バルコニー、 室内洗濯機置場
Fタイプ:ガレージ(1台+α)&1LDKタイプ
- 1階間取り
- ・1台+α用ガレージ 幅約4.0m×奥行き約5.3m
・シャッター開口部 幅約3.5m×高さ約2.24m
・電動リモコン付、ガレージ内水道(給湯)完備
・大型ユニットバス(追焚き付)、洗濯機置場
- 2階間取り
- ・LDK 約10.2畳 洋室 約5.5畳(クローゼット付)
・洗面化粧台、トイレ、システムキッチン完備、バルコニー
※ご入居にあたり家主様の審査があります。
※上記内容と現況に相違がある場合には現況を優先します。
見取り図


