満室-入居待ち登録受付中! プレミアムガレージハウス高槻『TAKATSUKI BASE』
-

完成イメージ ※実際と異なる場合があります。
完成イメージ ※実際と異なる場合があります。
プレミアムガレージハウス高槻『TAKATSUKI BASE』
- 所在地
- 大阪府高槻市津之江北町
- 総戸数
- 1棟6戸
- 賃貸条件等
-
礼金:1ヶ月敷金:1ヶ月仲介手数料:1ヶ月(別途消費税)
その他(保証会社保証料、借家人賠償保険加入等)
- 特徴
- ・屋外に車1台分の専用一時駐車スペースあり
- 築年数
- 4年
- アクセス
-
・名神・新名神高速道路高槻IC 約4.5km(車で約15分)
・名神高速道路茨木IC 約5km(車で約15分)
・JR京都線 摂津富田駅 約1.5km (徒歩約18分)
・阪急京都線 高槻市駅 約2km (徒歩27分)
- 周辺環境
-
・徒歩4分の位置に商店街があり、スーパーや飲食店、パン屋などが立ち並んでいます
・車で5分圏内の国道171号線沿いには飲食チェーン店やコンビニ、大手量販店などがあり生活利便性も高いエリアです
- 入居可能時期
- -
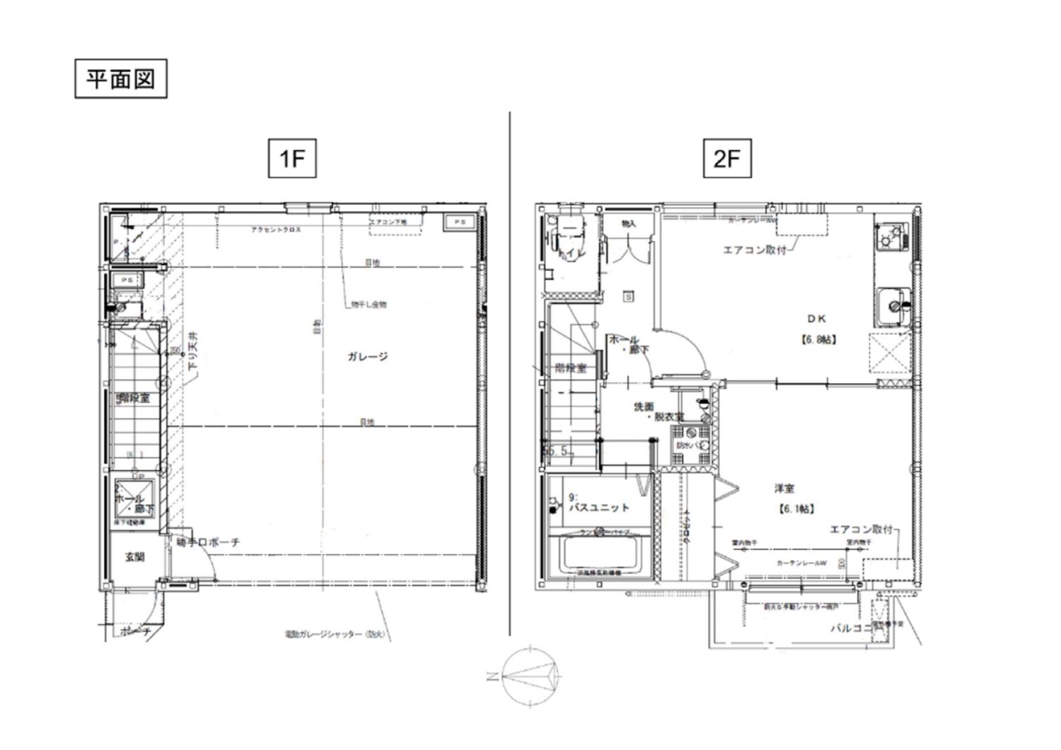
1DK+大型ガレージ+屋外1台分の専用駐車スペース
- 1階間取り
- 幅 約5.0m×奥行き約5.9mシャッター開口部 幅 約4.18m×高さ 約2.3m電動リモコンシャッター付、ガレージ内水道(給湯)完備
- 2階間取り
- DK 6.8畳 洋室 約6.1畳大型ユニットバス(追い焚き付)、洗面化粧台、トイレ、システムキッチン
見取り図

